BarberBox - gotowy lokal barberski 'pod klucz'
BarberBox to w pełni wyposażony moduł barberski zaprojektowany z myślą o szybkim starcie biznesu w dowolnej lokalizacji. To gotowy lokal, który pozwala prowadzić usługi fryzjersko-barberskie już od pierwszego dnia po montażu.

Dlaczego warto wybrać barberbox?
Poznaj główne zalety naszego rozwiązania
Gotowy 'pod klucz'
Pełne wyposażenie, można rozpocząć usługi od pierwszego dnia.
3 stanowiska barberskie
Lustra, możliwość pełnego wyposażenia fryzjerskiego.
Stanowisko do mycia włosów
Wygodny fotel z przyłączem wodnym.
Recepcja z poczekalnią
Przestrzeń dla klientów oczekujących na usługę.
Pełna niezależność
Eliminuje koszty wynajmu, wystarczy działka lub miejsce parkingowe.
Zastosowanie BarberBox
Sprawdź, gdzie możesz wykorzystać BarberBox
Mobilny barber shop
Salon fryzjerski dla mężczyzn
Moduł usługowy w parku handlowym, przy siłowni, klubie sportowym
Salon w przestrzeni miejskiej
Galeria zdjęć
Zobacz jak wygląda HotelBox w praktyce



Kliknij na zdjęcie, aby przeglądać galerię
Jak to działa?
Proces realizacji Twojego projektu w 4 prostych krokach
Konfiguracja lub kontakt
Wybierz moduł w konfiguratorze lub skontaktuj się z nami i opowiedz o swoich potrzebach.
Dopasowanie oferty
Przygotowujemy propozycję z wyceną, wariantami wyposażenia i terminem realizacji.
Akceptacja projektu
Po uzgodnieniu szczegółów i podpisaniu umowy rozpoczynamy produkcję.
Dostarczenie i montaż
Gotowy moduł dostarczamy i montujemy w ustalonym miejscu.
Gotowy na pierwszy krok?
Skontaktuj się z nami już dziś i rozpocznij realizację swojego wymarzonego modułu
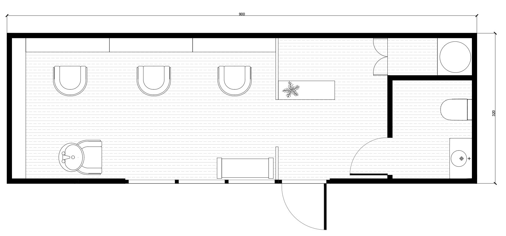
Przykładowy układ wnętrza
- 3 stanowiska barberskie z lustrami i możliwością pełnego wyposażenia
- 1 stanowisko do mycia włosów z wygodnym fotelem i przyłączem wodnym
- recepcja z poczekalnią dla klientów
- łazienka z WC w pełnym standardzie
- zaplecze socjalne na potrzeby obsługi

Standard wykończenia
BarberBox 3 × 9 lub 3 × 6 m
To gotowe rozwiązanie, który eliminuje koszty wynajmu i daje pełną niezależność - wystarczy działka lub miejsce parkingowe, aby rozpocząć działalność.
Specyfikacja techniczna
| Wymiary | 3 × 9 m lub 3 × 6 m |
| Konstrukcja | Stalowa |
| Rodzaj ocieplenia | Całoroczne |
| Podłoga | Panele LVT |
| Drzwi i okna | Aluminiowa witryna wraz z drzwiami z pochwytem |
| Instalacja elektryczna | Standard - przystosowana do działalności, osprzęt elektryczny |
Wyposażenie dodatkowe
Kalkulator - ile możesz zarabiać?
Wpisz swoje stawki i obłożenie. Wyniki są orientacyjne; finalne liczby zależą od lokalizacji i oferty.
* Przyjęto wartość budynku 60 tys brutto
Przychód miesięczny
Zysk brutto
Zwrot inwestycji
Założenia nie obejmują kosztów finansowania. *Wymogi prawne zależą od lokalizacji - pomagamy je sprawdzić.
Cennik - modele i konfiguracje
Ceny od - dotyczą konfiguracji bazowej. Wykończenie, klimatyzacja, instalacje oraz łazienka są dostępne jako opcje dodatkowe. Skontaktuj się z nami, aby dobrać wariant do Twoich potrzeb.
BarberBox 3×6
Powierzchnia 18 m². Kompaktowy salon z 2 stanowiskami barberskimi.
- Konstrukcja stalowa, całoroczne ocieplenie
- 2 stanowiska barberskie z lustrami
- Aluminiowa witryna z drzwiami
BarberBox 3×9
Powierzchnia 27 m². Pełnowymiarowy salon z 3 stanowiskami, recepcją i łazienką.
- Konstrukcja stalowa, całoroczne ocieplenie
- 3 stanowiska barberskie + stanowisko do mycia
- Recepcja, poczekalnia i łazienka
Rozszerzenia (opcjonalne)
Dobierz pod Twój model usług:
- Wydzielona i wyposażona łazienka
- Boiler na ciepłą wodę
- Recepcja z poczekalnią
- Drzwi wewnętrzne
- Oświetlenie LED premium
- Dodatkowe wyposażenie barberskie
Podane kwoty są cenami netto i mają charakter orientacyjny. Finalna wycena zależy od konfiguracji oraz lokalizacji.
Najczęściej zadawane pytania
Odpowiedzi na pytania, które najczęściej słyszymy od naszych klientów
Wyślij zapytanie
Wypełnij formularz w 4 prostych krokach, a skontaktujemy się z Tobą w ciągu 24 godzin
Kategoria modułu
Wybierz kategorię modułu, który Cię interesuje